Banner Colori del Carso: nuove ed esclusive ville in vendita a Opicina, Trieste

Informazioni principali

Riferimento:
TARVISIO CENTRALE E PANORAMICO
Tipologia:
Zona giorno più due stanze
Contratto:
Vendita
Prezzo:
€ 249.000
Provincia:
Udine
C. energetica:
In fase di definizione
Ascensore:
Non presente
Numero camere:
2
Numero bagni:
1
Riscaldamento:
Contabilizzato
Zona cottura:
Cucina abitabile
Zona giorno:
Salone
Posto auto:
Garage
Età immobile:
1981
Condizioni interne:
Buone
Condizioni esterne:
Buone
Giardino:
Non presente
Impianto elettrico:
Non a norma
Esposizione:
Sud e est
Piano:
2
Piani totali:
3

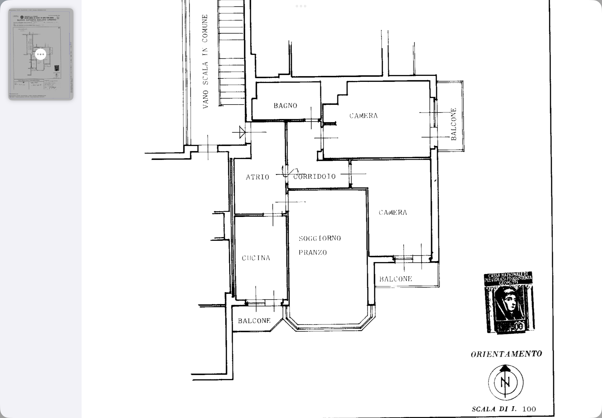
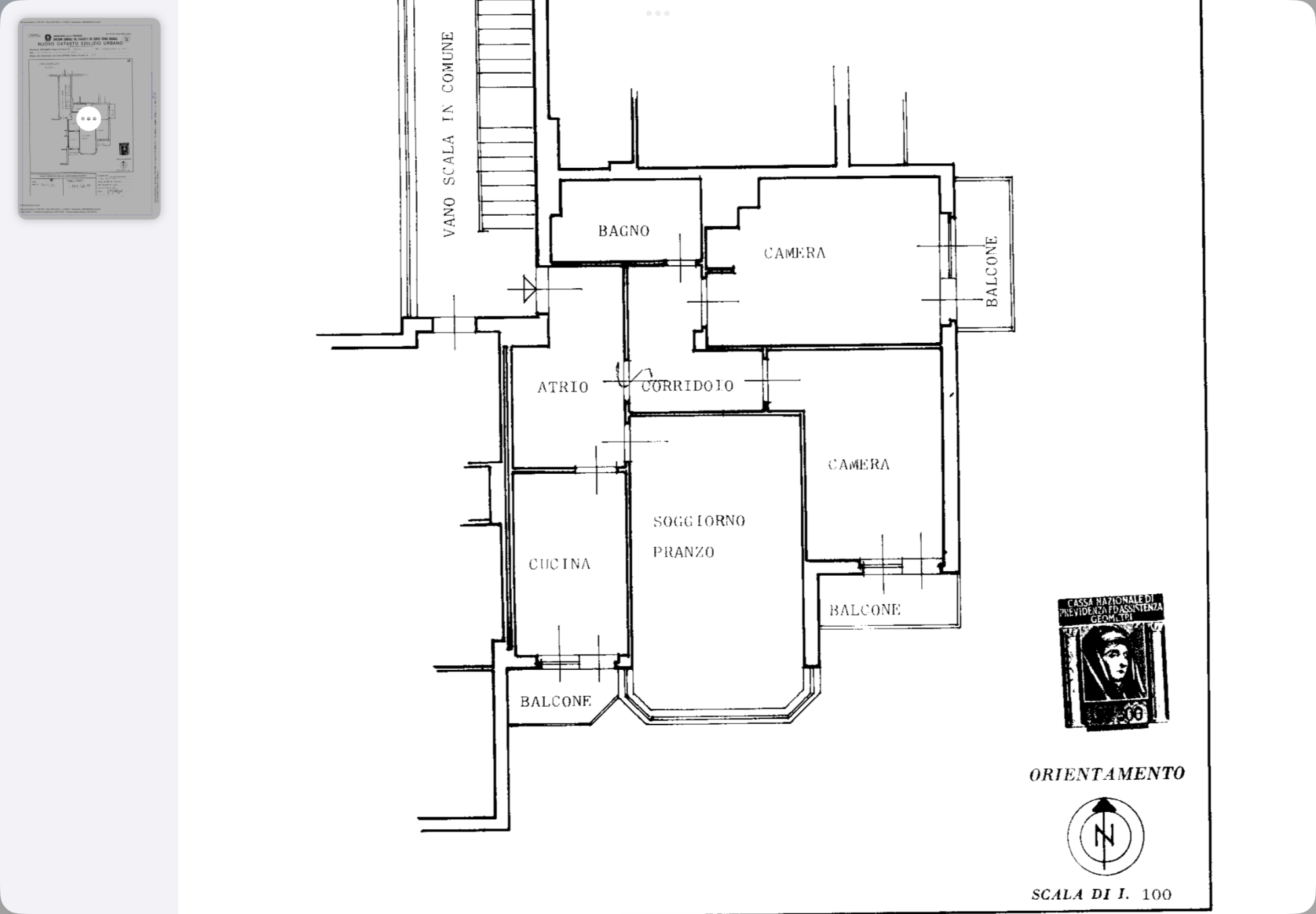
Planimetrie

Planimetria (1)
Planimetria (2)
Planimetria (3)
Planimetria (4)

Descrizione

TARVISIO CENTRALE e panoramico, grazioso appartamento di mq 94 in edificio del 1981, composto da salone, cucina abitabile, 3 balconi, bagno, ripostiglio, ingresso, garage, 2 cantine. L’alloggio è in buone condizioni, in quanto sempre manutentato  dalla proprietà. Grazie alla favorevole esposizione e all’affaccio, e’ soleggiato, luminoso e  tranquillo, in quanto rivolto verso le montagne e lontano dalla strada. Grazie alla sua comoda e centrale location, è possibile muoversi liberamente a piedi. È dotato di garage e 2 cantine. Possibile ottenere facilmente la terza stanza da letto. Richiesta 249.000 trattabili. Classe energetica in fase di definizione. Studio Immobiliare Benedetti tel. 040/3476251 orario lu-ve 9-12 e 15.30-18.30. Cell. +39/3385640595. 

Caratteristiche

  • Superficie m2: 94
  • Camere: 2
  • Piano: 2
  • Cantina
  • Poggiolo
  • Ripostiglio
  • Terrazza
Scarica locandina

Altre informazioni?
Inviaci un messaggio per questo immobile

{"base":"https://agenziabenedetti.it/"}

OK Questo sito o gli strumenti terzi da questo utilizzati si avvalgono di cookie necessari al funzionamento ed utili alle finalità illustrate nella cookie policy Ulteriori informazioni.