Banner Colori del Carso: nuove ed esclusive ville in vendita a Opicina, Trieste

Gorizia

Zona giorno con tre o più stanze in Vendita Via Cumano

Galleria fotografica

Informazioni principali

Riferimento:
CORMONS PRIMINGRESSO RISTRUTTURATO
Tipologia:
Zona giorno con tre o più stanze
Contratto:
Vendita
Prezzo:
€ 335.000
Provincia:
Gorizia
C. energetica:
In fase di definizione
Ascensore:
Numero camere:
3
Numero bagni:
2
Riscaldamento:
Autonomo a pavimento
Zona cottura:
Cucina a vista
Zona giorno:
Salone
Posto auto:
Posto auto scoperto
Età immobile:
2025
Condizioni interne:
Nuovo
Condizioni esterne:
Nuovo
Giardino:
Non presente
Impianto elettrico:
A norma
Aria condizionata:
Esposizione:
Esterna
Piano:
1
Piani totali:
3

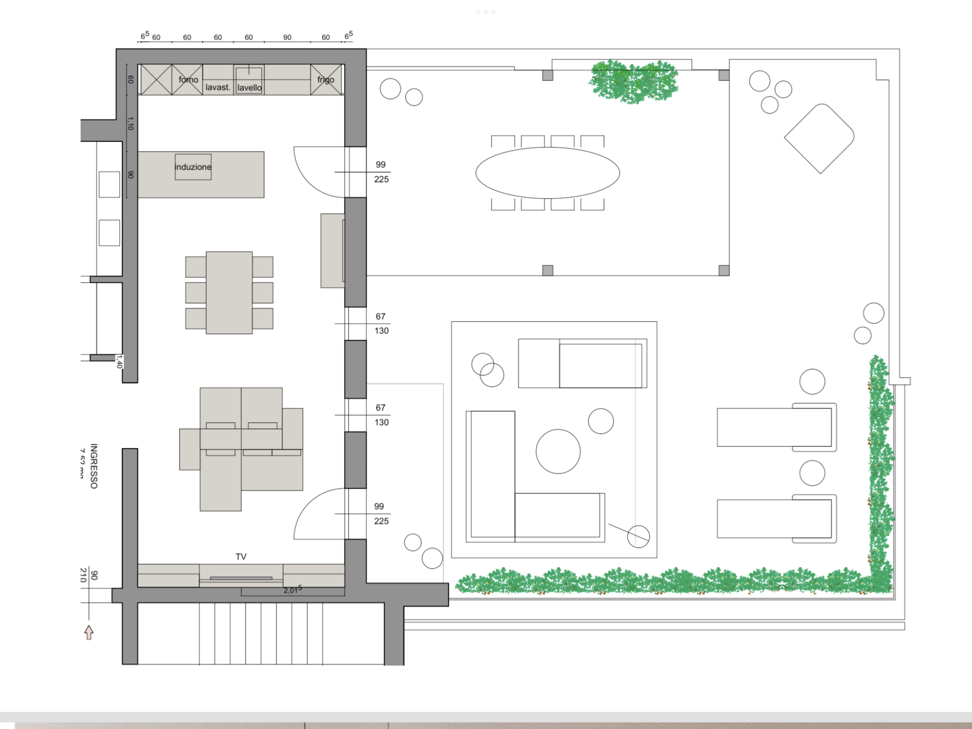
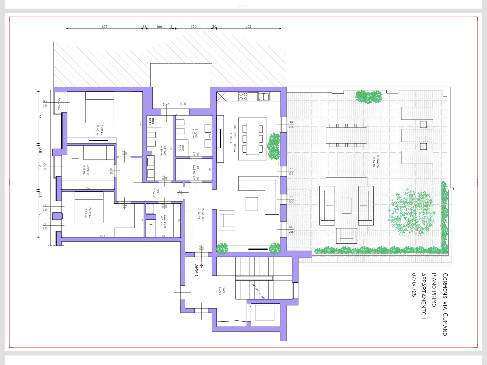
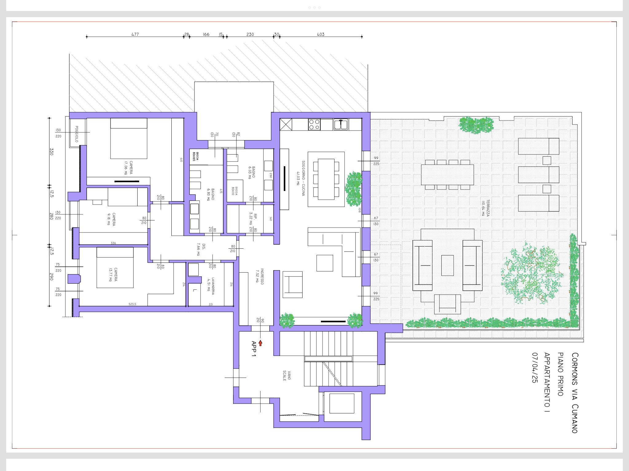
Planimetrie

Planimetria (1)
Planimetria (2)

Descrizione

CORMONS CENTRALISSIMO e spettacolare appartamento di mq 140 oltre ad ampia  terrazza di ulteriori mq 110, in raffinata palazzina in fase di globale ristrutturazione. E’ composto da un ampio salone con 4 finestre, cucina a vista e accesso al terrazzo, doppi servizi, generosa lavanderia, cantina e posto auto. E’ dotato di riscaldamento radiante a gestione autonoma, fotovoltaico con batterie di accumulo e porta blindata. E’ privo di barriere architettoniche, infatti per arrivare all’ascensore non ci sono gradini da fare. Grazie alla sua comoda e centrale location, è possibile muoversi liberamente a piedi e anche per raggiungere la stazione, che collega Cormons velocemente alle principali città regionali. La generosa terrazza, offre dei momenti di relax senza la manutenzione continua che un giardino richiede. Classe energetica in fase di definizione. Studio Immobiliare Benedetti tel. 040/3476251 orario lu-ve 9-12 e 15.30-18.30. Cell. 338/5640595. 

Caratteristiche

  • Superficie m2: 140
  • Camere: 3
  • Piano: 1
  • Adatto a disabili
  • Cantina
  • Poggiolo
  • Ripostiglio
  • Terrazza
Scarica locandina

Altre informazioni?
Inviaci un messaggio per questo immobile

{"base":"https://agenziabenedetti.it/"}

OK Questo sito o gli strumenti terzi da questo utilizzati si avvalgono di cookie necessari al funzionamento ed utili alle finalità illustrate nella cookie policy Ulteriori informazioni.