Banner Colori del Carso: nuove ed esclusive ville in vendita a Opicina, Trieste

Trieste

Terreni in Vendita Via Fonte Oppia

Galleria fotografica

Informazioni principali

Riferimento:
DELL’ISTRIA ADIACENZE TERRENO EDIFICABILE
Tipologia:
Terreni
Contratto:
Vendita
Prezzo:
€ 189.000
Provincia:
Trieste
Posto auto:
Garage doppio
Esposizione:
Sud

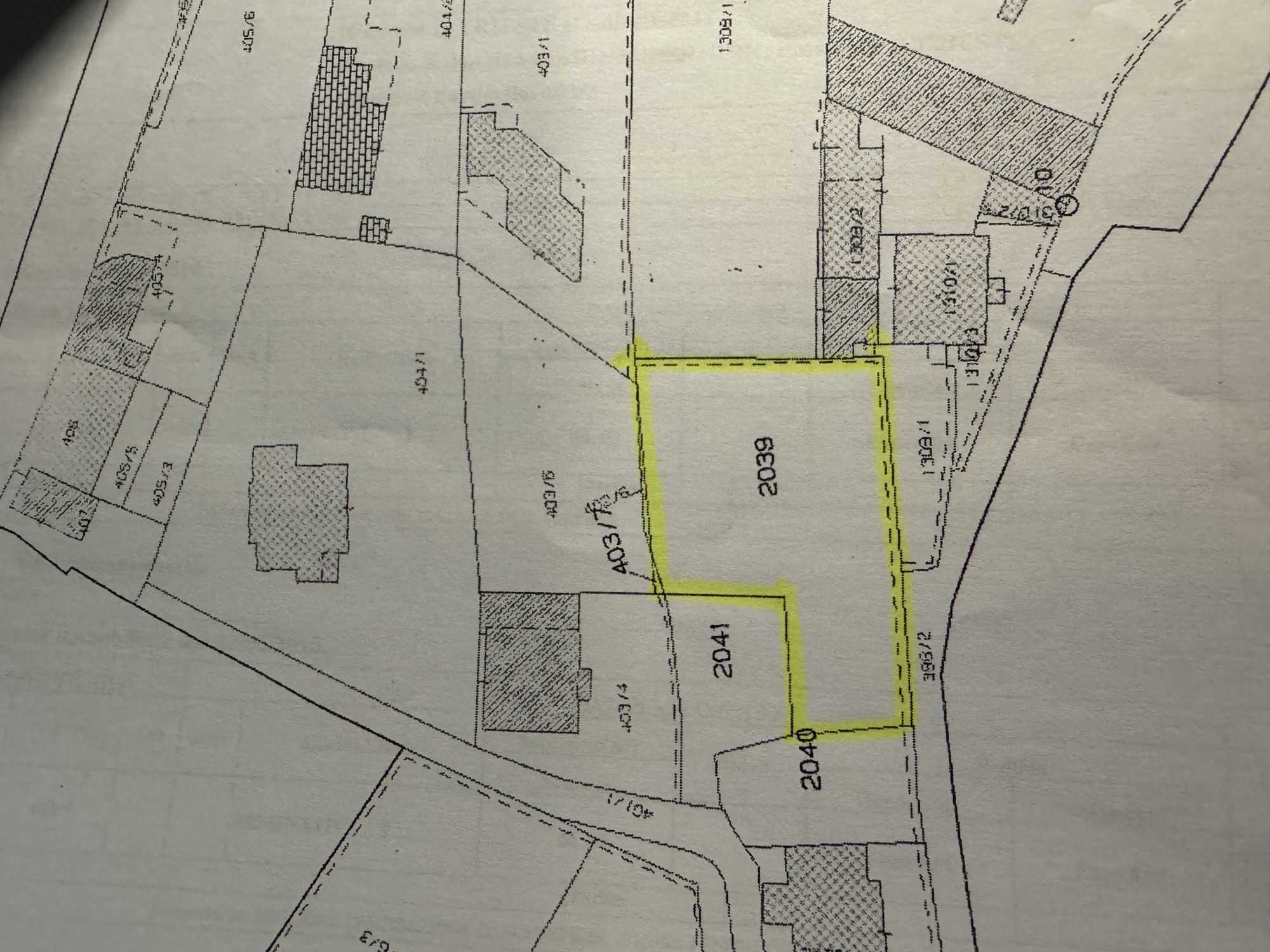
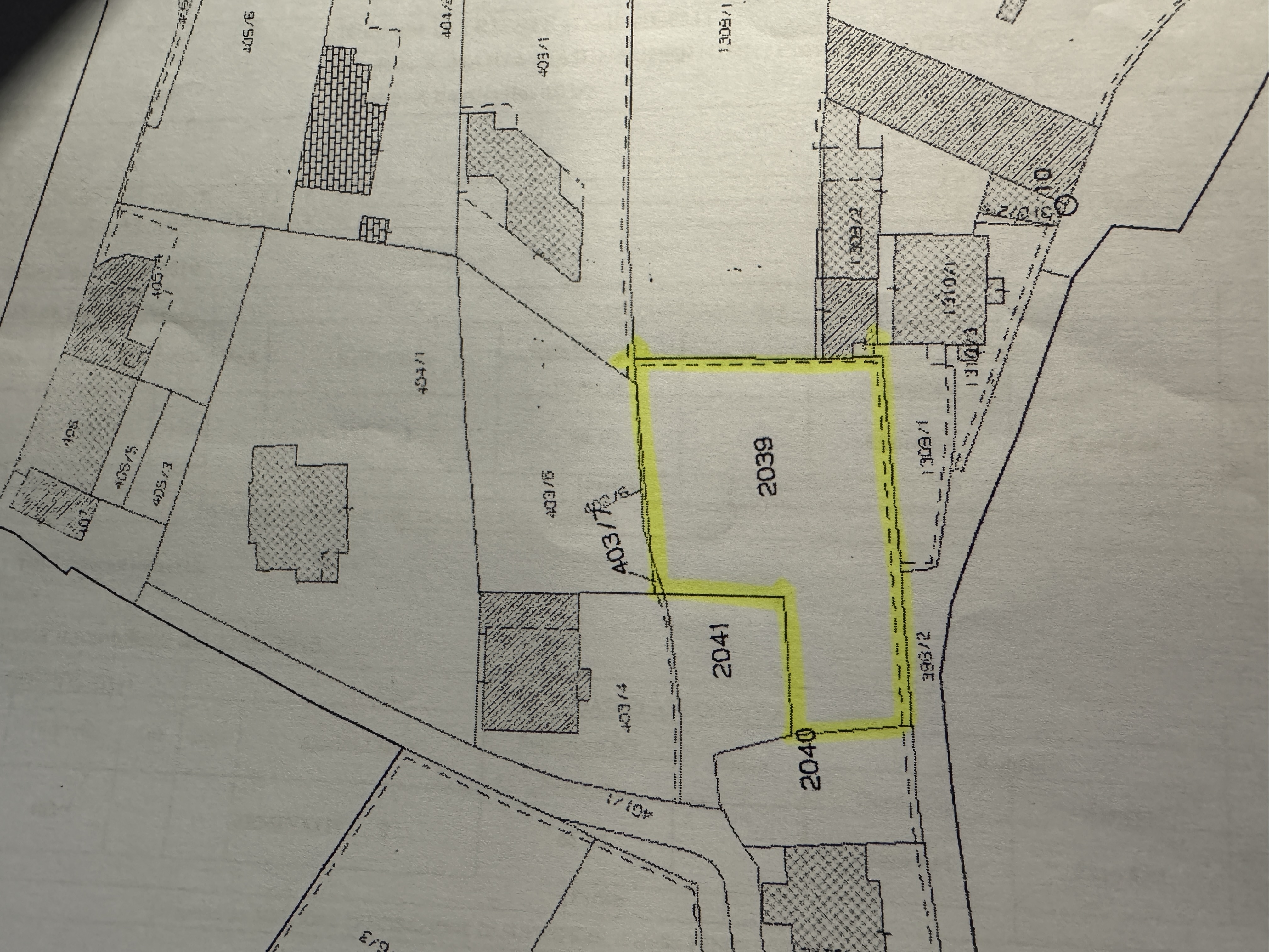
Planimetrie

Planimetria (1)

Descrizione

DELL’ISTRIA ADIACENZE TERRENO EDIFICABILE soleggiato, luminoso, pianeggiante di mq 740 con coefficiente di edificabilità pari a 1 mc/mq; si possono quindi realizzare mc 740. In questo volume si possono edificare un’ampia villa singola, una bifamiliare o una palazzina con minimo 5 alloggi. Il terreno è in posizione rialzata rispetto la strada, per cui ha una posizione dominante, gode di vista aperta panoramica e, grazie alla favorevole esposizione, sud pieno, molto molto sole. Si possono facilmente realizzare una comoda ed ampia autorimessa e una taverna sotto il terreno, alle spalle del muro di confine.   Richiesta 189.000 trattabili. Studio Immobiliare Benedetti tel. 040/3476251 orario lu-ve 9-12 e 15.30-18.30. Cell. 338/5640595

Caratteristiche

  • Superficie m2: 740
Scarica locandina

Altre informazioni?
Inviaci un messaggio per questo immobile

{"base":"https://agenziabenedetti.it/"}

OK Questo sito o gli strumenti terzi da questo utilizzati si avvalgono di cookie necessari al funzionamento ed utili alle finalità illustrate nella cookie policy Ulteriori informazioni.